Добро пожаловать на http://vipplan.ru

Випплан Тайшет - это тысячи проектов домов в нашем каталоге!

Вы всегда сможете найти для себя проект дома вашей мечты! Даже если этого не случилось, мы готовы в любую минуту предложить проект индивидуального дома.

Забыли пароль?
Вы еще не регистрировались?

Перейдите по ссылке ниже на страницу регистрации.

Регистрация...

Внимание!!!

В проектную документацию могут быть внесены изменения любой сложности, в соответствии в Вашими пожеланиями!

Полезные статьи

Утепление стен дома изнутри

Утепление стен дома изнутри – это не правильный метод теплоизоляции помещения и используется в самом крайнем случае, когда других вариантов уже не остается. Как правило, утепление стен изнутри выполняется по незнанию или вынужденно, поскольку, теплоизоляция внутренних помещений дома другим способом невозможна. Вопросы теплоизоляции необходимо решать на стадии проектирования дома или коттеджа, а не тогда когда дом уже построен и приходится исправлять совершенные ошибки по факту....

Выбор участка для строительства дома

Если вы решили приобрести участок земли и построить на нем дом или дачу. То данная статья специально для вас. А так же мы поможем вам в выборе проекта для выбранного вами участка....

Проекты домов и коттеджей > Каталог проектов домов > Дом с террасой и зимним садом Vg1203

Дом с террасой и зимним садом Vg1203

Дом с террасой и зимним садом
Зарегистрируйтесь

Проект № Vg1203


Техническое описание
Общая площадь: 131.62 м2
Жилая площадь: 62.85 м2
Высота здания: 6.41 м
Размеры дома: 14.03м×13.54м
Кол-во комнат: 4
Цокольный этаж: нет
Гараж: нет
Мансарда: нет

Kонструкция
Фундамент: Свайный (винтовые сваи)
Перекрытия: Деревянные балки
Материал стен: Каркас

Архитектурный раздел
Конструктивный раздел
Инженерный раздел
АР+КР - 52 000 (Со скидкой 20%)
АР+КР+ИР - 98 200 (Со скидкой 50%)
Проект индивидуального одноэтажного жилого дома, размерами 14,03 х 13,54 м. Наружная отделка здания – сайдинг под дерево. Цоколь – цокольный сайдинг. Кровля – битумная черепица. Фундамент – свайный (винтовые сваи). Наружные стены: деревянный каркас с тепло-шумоизоляцией между стойками. Внутренние стены и перегородки – деревянный каркас и ГКЛ на металлическом каркасе. Пол под основной частью здания – пол по деревянным лагам, пол под гаражом и бойлерной — по монолитной ж/б плите. Окна металлопластиковые, выполненные по индивидуальному заказу.
Генплан застройки участка / Паспорт проекта 7000 руб / 10000 руб
Инженерный раздел (полный) 46200 руб (66000 руб)
Смета на строительство 33000 руб
Теплотехнический расчет материалов стен Бесплатно
Стоимость проекта со незначительнми изменениями 61700 руб
Стоимость проекта со средними изменениями* 71600 руб
Стоимость проекта со значительными изменениями** 74200 руб

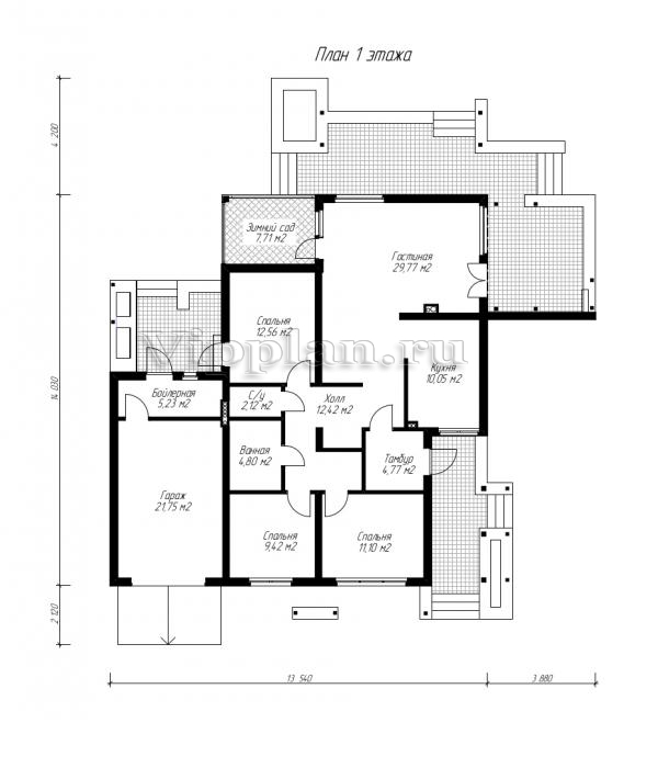
План первого этажа


Тамбур — 4,77 м2
Холл — 12,42 м2
Гостиная — 29,77 м2
Кухня — 10,05 м2
Спальня — 12,56 2 С/у — 2,12 м2
Ванная — 4,80 м2
Спальня — 9,42 м2
Спальня — 11,10 м2
Бойлерная — 5,23 м2
Гараж — 21,75 м2
Зим/сад — 7,77 м2
Дом с террасой и зимним садом Дом с террасой и зимним садом Дом с террасой и зимним садом Дом с террасой и зимним садом

Модификации проектов

Внесение изменений и привязка к участку строительства

В любой из проектов от компании VIPplan - Тайшет по вашему желанию могут быть внесены изменения в материалы стен, материалы наружной отделки дома, а также будет произведена адаптация проекта под конкретный регион строительства (с учетом грунтов региона, геологических особенностей вашего участка и местных климатических условий) - БЕСПЛАТНО !!! (кроме проектов со скидкой и проектов наших партнеров).

Любой из проектов, размещенных на сайте tayshet.vipplan.ru мы можем выполнить из требуемых вам строительных материалов: ячеистый бетон (газобетон, пеноблок), керамоблок, кирпич, шлакоблок, бетонный блок, дерево (брус, клееный брус), каркасная технология (деревянный каркас, металлокаркас (ЛСТК)).

Фасад дома и его наружную отделку так же возможно выполнить с применением различных облицовочных материалов: структурной штукатурки, (с утеплителем и без), сайдингом (пластиковый или металлосайдинг), фиброплитами, кирпича.

 
6 Избранные
проекты

Доставка проектов по России: Москва (Московская область), Санкт-Петербург (Ленинградская область), Краснодар, Ростов-на-Дону, Ставрополь, Сочи, Волгоград, Новосибирск, Белгород, Брянск, Воронеж, Саратов, Хабаровск, Астрахань, Нальчик, Владикавказ, Екатеринбург, Тюмень, Самара, Нижний Новгород, Казань, Пермь, Уфа, Челябинск, Красноярск, Ханты-Мансийск, Иркутск, Курган, Оренбург, Омск, Томск, Барнаул, Новокузнецк, Кемерово, Абакан, Чита, Якутск, Южно-Сахалинск, Петропавловск-Камчатский и страны ближнего зарубежья: Белоруссия, Украина, Казахстан