Добро пожаловать на http://vipplan.ru

Випплан Тайшет - это тысячи проектов домов в нашем каталоге!

Вы всегда сможете найти для себя проект дома вашей мечты! Даже если этого не случилось, мы готовы в любую минуту предложить проект индивидуального дома.

Забыли пароль?
Вы еще не регистрировались?

Перейдите по ссылке ниже на страницу регистрации.

Регистрация...

Внимание!!!

В проектную документацию могут быть внесены изменения любой сложности, в соответствии в Вашими пожеланиями!

Полезные статьи

Проекты быстровозводимых домов и коттеджей в Тайшете

Некоторые люди до сих пор считают, что быстровозводимые дома представляют собой безликие, недолговечные, однотипные строения. Эти утверждения не соответствуют действительности. На данный момент, строительные технологии шагнули вперед и дома «быстрого приготовления» считаются эталоном комфорта, уюта и даже выделяются, в архитектурном плане, на фоне дорогих кирпичных коттеджей. Быстровозводимые дома не дорогие и изготавливаются в кратчайшие сроки....

Дом это прекрасное вложение

Современный рынок недвижимости диктует свои правила. Цены на землю и недвижимость в Тайшете постоянно растут и вынуждают по-другому смотреть на покупку собственного дома. Не только со стороны получения удобного, благоустроенного жилья, но и со стороны капитализации и инвестировании своих средств...

Проекты домов и коттеджей > Каталог проектов домов > Проект небольшого одноэтажного дома с мансардой Vg1323

Проект небольшого одноэтажного дома с мансардой Vg1323

Проект небольшого одноэтажного дома с мансардой
Зарегистрируйтесь

Проект № Vg1323


Техническое описание
Общая площадь: 151.11 м2
Жилая площадь: 99.68 м2
Высота здания: 8.29 м
Размеры дома: 11.12м×8.04м
Кол-во комнат: 4
Цокольный этаж: нет
Гараж: нет
Мансарда: есть

Kонструкция
Фундамент: Монолитная ж/б плита
Перекрытия: Деревянные
Материал стен: Опалубка

Архитектурный раздел
Конструктивный раздел
АР+КР - 56 000 (Со скидкой 20%)
Проект индивидуального одноэтажного жилого дома с мансардой, размерами 11,12 х 8,04 м. Наружная отделка здания – фасадная штукатурка. Цоколь – камень. Кровля – битумная черепица. Фундамент – монолитная железобетонная плита. Наружные стены: несъемная опалубка с отделкой фасадной штукатуркой. Внутренние стены и перегородки – стены из несъемной опалубки, каркасные перегородки с ГКЛ. Отделка вентканалов и дымоходов – штукатурка. Пол первого этажа – пол по грунту. Чердачное перекрытие - по деревянным балкам с использованием теплошумоизоляционных материалов типа «URSA» в межбалочном пространстве. Крыша двускатная. Окна металлопластиковые, выполненные по индивидуальному заказу.
Генплан застройки участка / Паспорт проекта 7000 руб / 10000 руб
Инженерный раздел (полный) 75500 руб
Смета на строительство 37750 руб
Теплотехнический расчет материалов стен Бесплатно
Стоимость проекта со незначительнми изменениями 66200 руб
Стоимость проекта со средними изменениями* 77600 руб
Стоимость проекта со значительными изменениями** 80600 руб

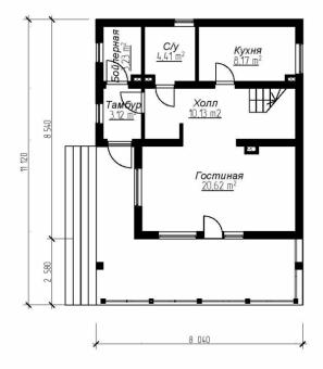
План первого этажа


Бойлерная — 3,23 кв м
С/у — 4,41 кв м
Холл — 10,13 кв м
Тамбур — 3,12 кв м
Кухня — 8,17 кв м
Гостиная — 20,62 кв м

План мансардного этажа


Спальня — 16,72 кв м
Холл — 4,80 кв м
С/у — 5,30 кв м
Спальня — 17,39 кв м
Спальня — 17,14 кв м
Проект небольшого одноэтажного дома с мансардой Проект небольшого одноэтажного дома с мансардой Проект небольшого одноэтажного дома с мансардой Проект небольшого одноэтажного дома с мансардой

Модификации проектов

Внесение изменений и привязка к участку строительства

В любой из проектов от компании VIPplan - Тайшет по вашему желанию могут быть внесены изменения в материалы стен, материалы наружной отделки дома, а также будет произведена адаптация проекта под конкретный регион строительства (с учетом грунтов региона, геологических особенностей вашего участка и местных климатических условий) - БЕСПЛАТНО !!! (кроме проектов со скидкой и проектов наших партнеров).

Любой из проектов, размещенных на сайте tayshet.vipplan.ru мы можем выполнить из требуемых вам строительных материалов: ячеистый бетон (газобетон, пеноблок), керамоблок, кирпич, шлакоблок, бетонный блок, дерево (брус, клееный брус), каркасная технология (деревянный каркас, металлокаркас (ЛСТК)).

Фасад дома и его наружную отделку так же возможно выполнить с применением различных облицовочных материалов: структурной штукатурки, (с утеплителем и без), сайдингом (пластиковый или металлосайдинг), фиброплитами, кирпича.

 
6 Избранные
проекты

Доставка проектов по России: Москва (Московская область), Санкт-Петербург (Ленинградская область), Краснодар, Ростов-на-Дону, Ставрополь, Сочи, Волгоград, Новосибирск, Белгород, Брянск, Воронеж, Саратов, Хабаровск, Астрахань, Нальчик, Владикавказ, Екатеринбург, Тюмень, Самара, Нижний Новгород, Казань, Пермь, Уфа, Челябинск, Красноярск, Ханты-Мансийск, Иркутск, Курган, Оренбург, Омск, Томск, Барнаул, Новокузнецк, Кемерово, Абакан, Чита, Якутск, Южно-Сахалинск, Петропавловск-Камчатский и страны ближнего зарубежья: Белоруссия, Украина, Казахстан